TOTO CES9520FWR ネオレスト RS2 取扱説明書 商品図面 施工説明書 分解図
各種図面のご利用については 免責事項をご確認の上ご利用ください。
TCF9520WR ネオレスト RS2 機能部取扱説明書
このデータは2025年8月 現在のものです。
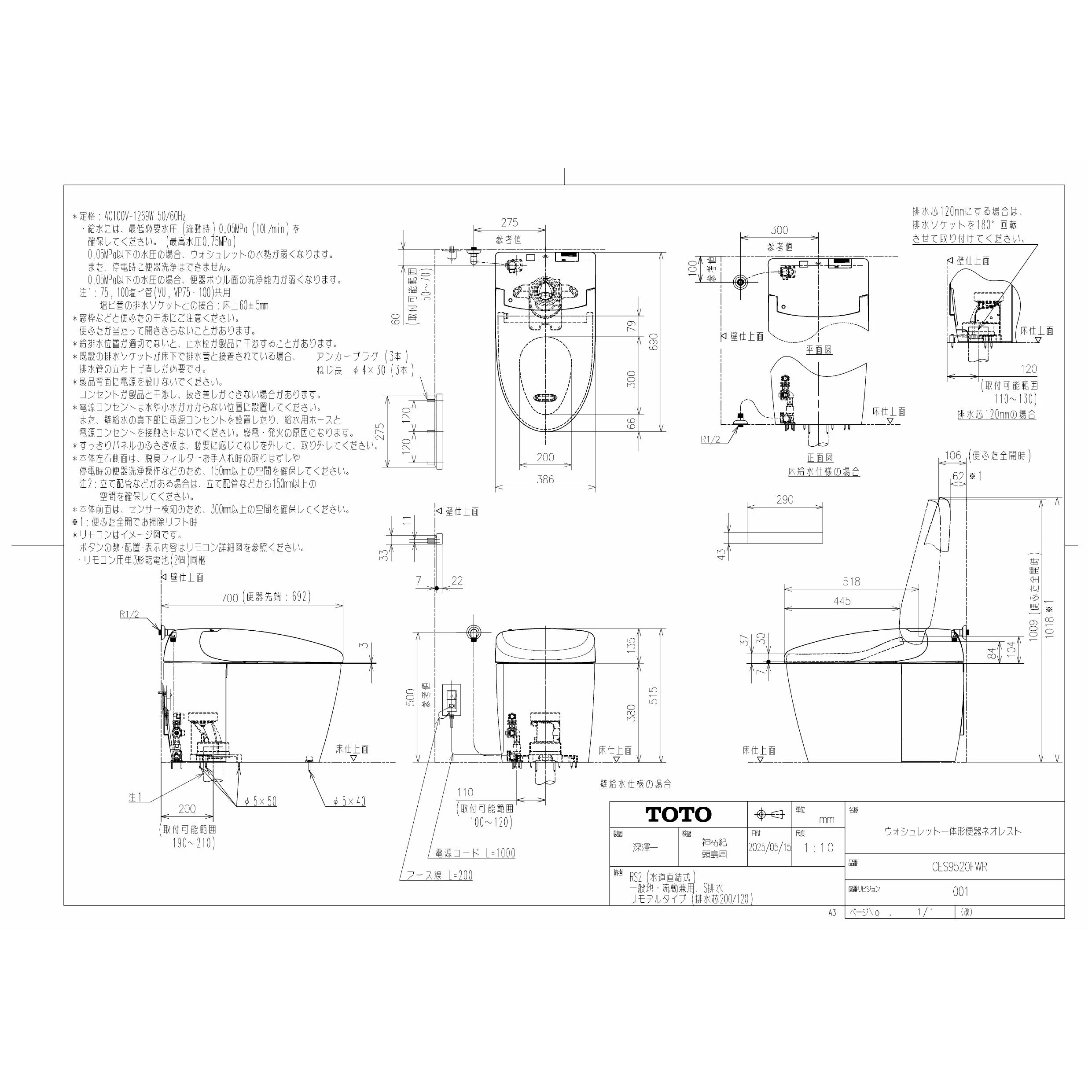
CES9520FWR ネオレスト RS2商品図面
このデータは2025年8月 現在のものです。
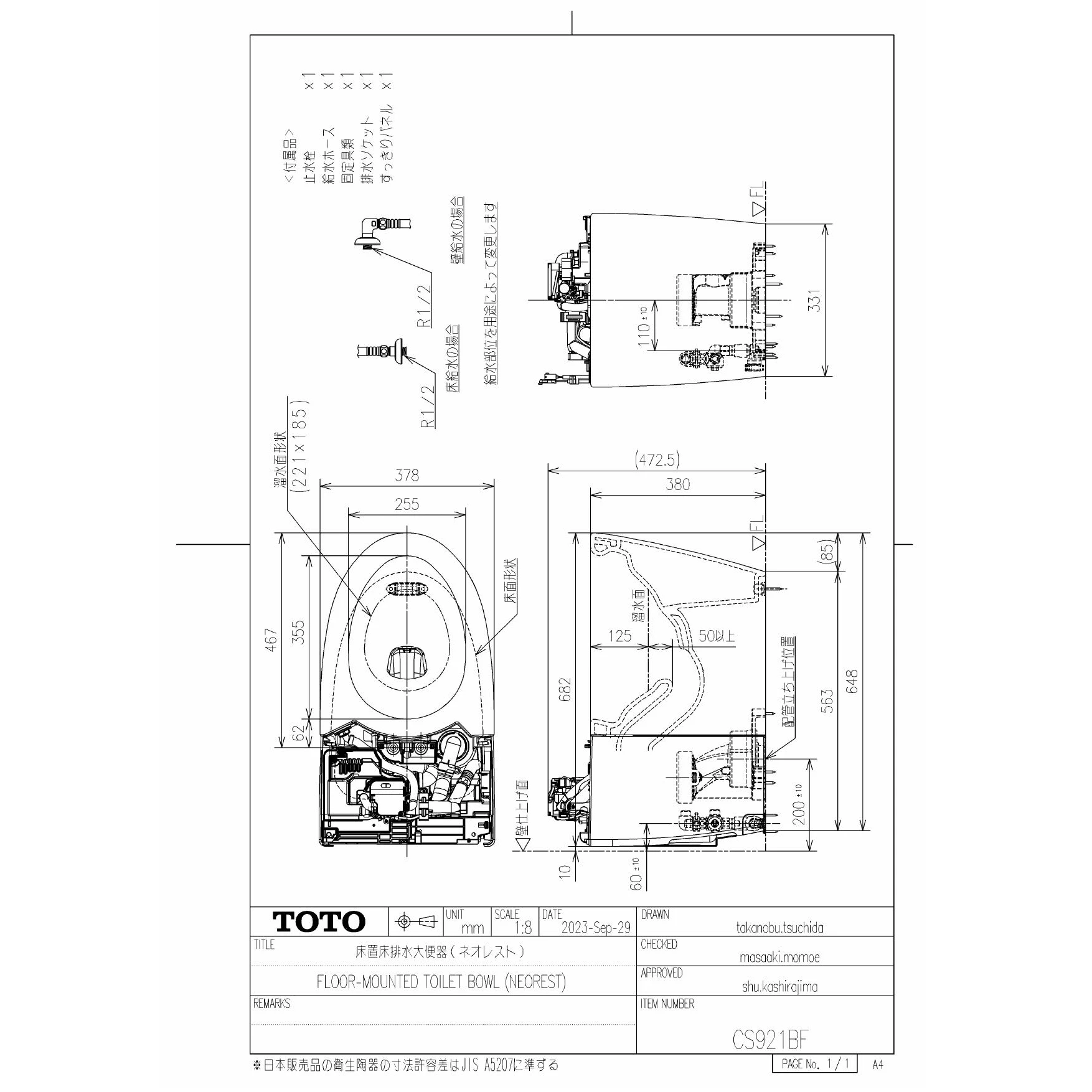
CS921BF 床置床排水大便器商品図面
このデータは2025年8月 現在のものです。
CS921BF 床置床排水大便器施工説明書
このデータは2025年8月 現在のものです。
TCF9520WR ネオレスト RS2 機能部施工説明書
このデータは2025年8月 現在のものです。
CS921BF 床置床排水大便器分解図
このデータは2025年8月 現在のものです。
TCF9520WR ネオレスト RS2 機能部分解図
このデータは2025年8月 現在のものです。















